商品詳細 材質  縞鋼板 板厚  3.2mm 製品サイズ  オーダー指定  ※401×601 〜 500×850(mm) 取っ手  オーダー指定  ※丸孔/長穴/スライド型 選択 ズレ止め・補強材  あり(T字) コーナーR  オーダー指定  ※C面取りも可能です 重量  約6.1〜10.7kg 納期  4〜6営業日 塗装  未処理  市販のペンキ等を塗布することで耐食性が  向上します。

グリストラップ 蓋とは グリストラップを覆う蓋を指します。

グリストラップの蓋は、多くが縞鋼板でできており、表面に連続した滑り止め用の突起が付いています。

人間が乗っても壊れない耐荷重能力、金属を腐食から守る耐食性や耐水性を保持する必要があり、普及している大半の蓋は鉄またはステンレス素材でできています。

また、グリストラップから発生する悪臭を閉じ込める防臭効果の役割も果たします。

しかし、グリストラップの蓋は、錆、腐食、破損などで老化し、そのまま放置すると人が踏んで蓋が外れたりして怪我や事故の原因にもなります。

老化によって悪臭があふれ出し店内が臭くなる原因にもなりかねません。

グリストラップ蓋に穴が空いていたり、グラつき、錆びが激しい状態の場合は早急に新しい蓋に交換することをおススメします。

蓋タイプの選定とは、当店ではA〜Eタイプまでの種類を取り扱っておりますので、目的、用途に合わせてお選びください。

サイズについては、お客様にて使用される場所をご確認のうえ、決めてください。

取っ手については、基本のタイプが穴【無し】となっております。

カゴに入れる前に取っ手を指定ください。

受注生産・オーダー製作となるため、交換・返品等ができません。

不明な点がある場合は、お気軽にお問い合わせください。

蓋に取付ける一般的、オーソドックスな形状のズレ止め・補強材種類となります。

用途に合わせて、必要なズレ止め・補強材をお選びください。

Aタイプ Bタイプ Cタイプ Dタイプ Eタイプ ズレ止め・補強が不要な場合 全周に取り付け 中心を基準に取り付け T型に取り付け(2枚使用に有効) T型の強化用(2枚使用に有効) ズレ止め・補強材の選定で悩まれましたら、下記参考にしてください。

【A】タイプ ズレ止め・補強材が不要な場合です。

枠(フチ)形状が【3】のようなはまり込む場合で、比較的小さい蓋の場合にはこちらのタイプが選ばれます。

【B】タイプ ズレ止め・補強材を全周に取付けます。

枠(フチ)形状が【1】のような床と高さを合わせる場合で、ズレ止め・補強材の高さを指定できます。

【C】タイプ ズレ止め・補強材を十字に取付けます。

枠(フチ)形状が【2】・【3】のような場合で、高さを合わせる必要がなく、蓋の中心の耐荷重強度を増したいとき、サイズが比較的大きな場合に選ばれます。

【D】タイプ ズレ止め・補強材をT型に取付けます。

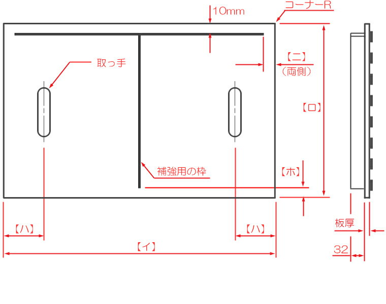
グリストラップ蓋が2枚仕様の場合に選ばれるタイプです。

蓋が2枚の場合は、1辺(中央部)がフチに乗らない状態となり、強度が弱くなるため、補強材を内側に付け強度UPします。

【E】タイプ T型の補強強化用となります。

こちらも蓋が2枚仕様の場合に有効な補強形状です。

補強材を内側に付け、さらに長手方向に補強材を2本付けて強度を上げます。

タイプ 板厚 サイズ D 3.2 mm 300×400 400×500 400×700 400×850 500×600 500×850 600×700 600×850 700×850 4.5 mm 300×400 400×500 400×700 400×850 500×600 500×850 600×700 600×850 700×850

レビュー件数0
レビュー平均0
ショップ 鉄板広場
税込価格 13,110円
hidetaka