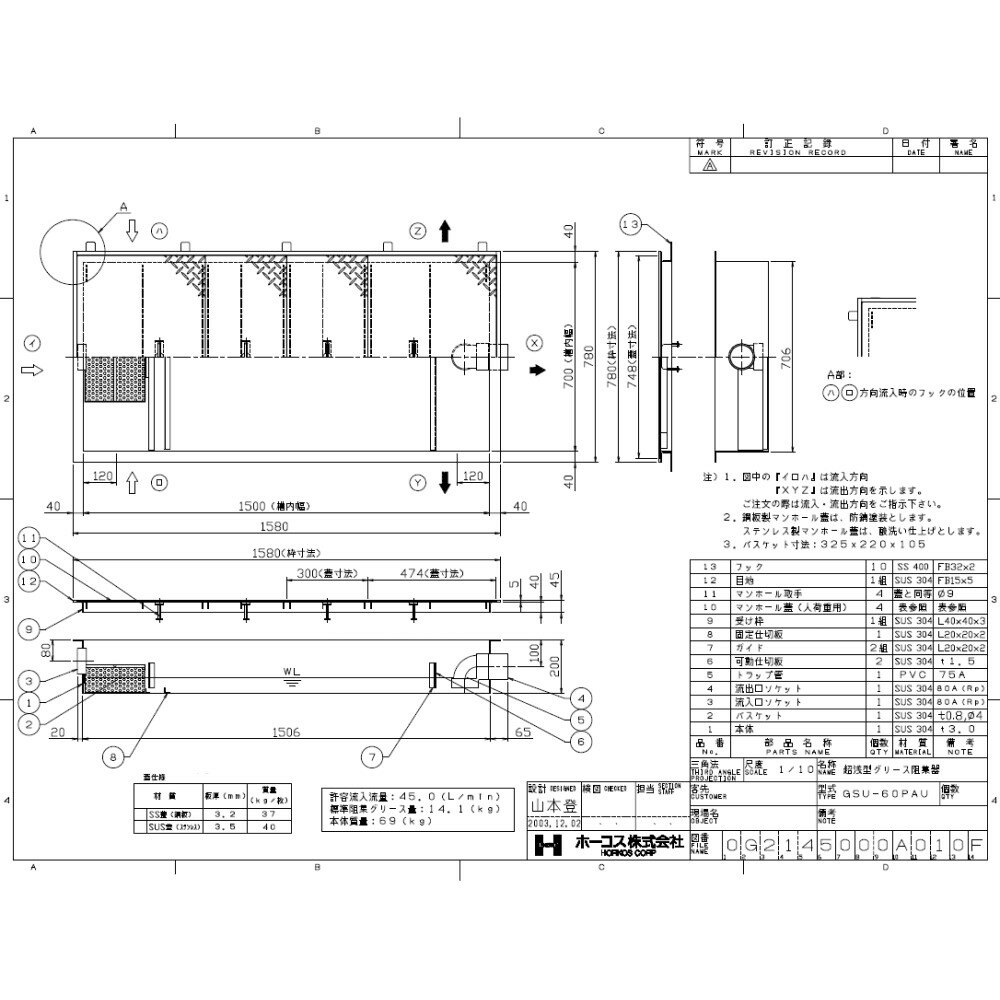
HORKOS ステンレス製超浅型グリース阻集器 シンダー埋込 パイプ流入式 3槽式 別枠式マンホール ■GSU-60PAU+S  本体 SUS304 バスケット SUS304 パンチングメタル 受け枠 SUS304 マンホール蓋 ステンレス(T-0 人荷重) ※ご注文の際は、流入(イ・ロ・ハ)、流出(X・Y・Z)方向をご指示ください。

バスケット取っ手の位置も変わります。

増打コンクリート(シンダー)埋設用です。

厨房排水はパイプから阻集器に流入します。

スラブの開口が不要です。

《施工手順》 1.スラブコンクリートへ防水を施行し、防水保護モルタルを打設してください。

2.流入方向及び流出方向を確認してください。

3.阻集器本体を据え付ける位置に均しコンクリートを打ちます。

4.レベル調整・芯だしを行います。

5.流入管及び流出管の接続は、シール剤を使用し確実に行ってください。

6.シンダーコンクリートを打設します。

7.床仕上げを行います。

8.別枠式マンホールの場合は、受け枠を床仕上げレベルに合わせて設置します。

  この際、床仕上げを行う前にマンホール蓋を受け枠に設置しマンホール蓋が容易に外せることを確認してください。

 (受け枠がねじれている場合、マンホール蓋が収まらなかったり、取り外せなくなることがあります。

) 9.かさ上げを施工する場合は、木枠等で固定しコンクリート圧により内側にたわまないようにしてください。

 (バスケット、仕切板等が取り外せなくなることがあります。

) ホーコス グリーストラップ グリストラップ 

レビュー件数0
レビュー平均0
ショップ たね葉
税込価格 448,415円
hidetaka