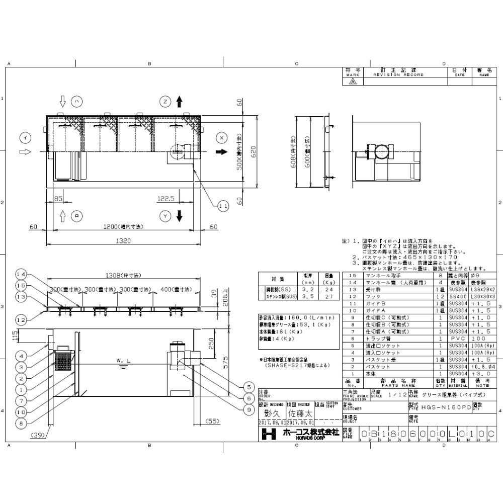
HORKOS ステンレス製グリース阻集器 地中埋設専用 パイプ流入式 3槽式 ■HGS-N160PD+F14  《セット内容》 ・本体 SUS304 ・バスケット SUS304 パンチングメタル ・マンホール蓋 鋼板製防錆塗装(T-14 中荷重) 建物1階屋外の地中埋設用です。

厨房排水はパイプから阻集器に流入します。

本体はステンレス製です。

丈夫でリサイクルも可能です。

◆施工手順 1.阻集器本体の大きさに合わせて土間を掘削します。

2.割栗石を敷きその間に砂利を入れて十分に突き固めたあと、コンクリートを10cm〜15cm程度打ちます。

3.流入方向及び流出方向を確認し、阻集器本体を据えつけます。

4.レベル調整・芯だしを行います。

5.流入管及び流出管の接続は、シール剤を使用し確実に行ってください。

6.埋め戻しを行う際は、コンクリート等で固めます。

  この際、阻集器本体がたわまないように槽内に張木を施し、槽内へ水を溜めながら行ってください。

  (バスケット、仕切板等が取り外せなくなることがあります。

) 7.別枠式マンホールの場合は、受け枠を床仕上げレベルに合わせて設置します。

  この際、床仕上げを行う前にマンホール蓋を受け枠に設置しマンホール蓋が容易に外せることを確認してください。

  (受け枠がねじれている場合、マンホール蓋が収まらなかったり、取り外せなくなることがあります。

) 8.かさ上げを施工する場合は、木枠等で固定しコンクリート圧により内側にたわまないようにしてください。

  (バスケット、仕切板等が取り外せなくなることがあります。

) 9.地下水の水位が高い場所では、防水等水圧に考慮した施工が必要です。

ホーコス グリーストラップ グリストラップ 

レビュー件数0
レビュー平均0
ショップ たね葉
税込価格 487,872円
hidetaka