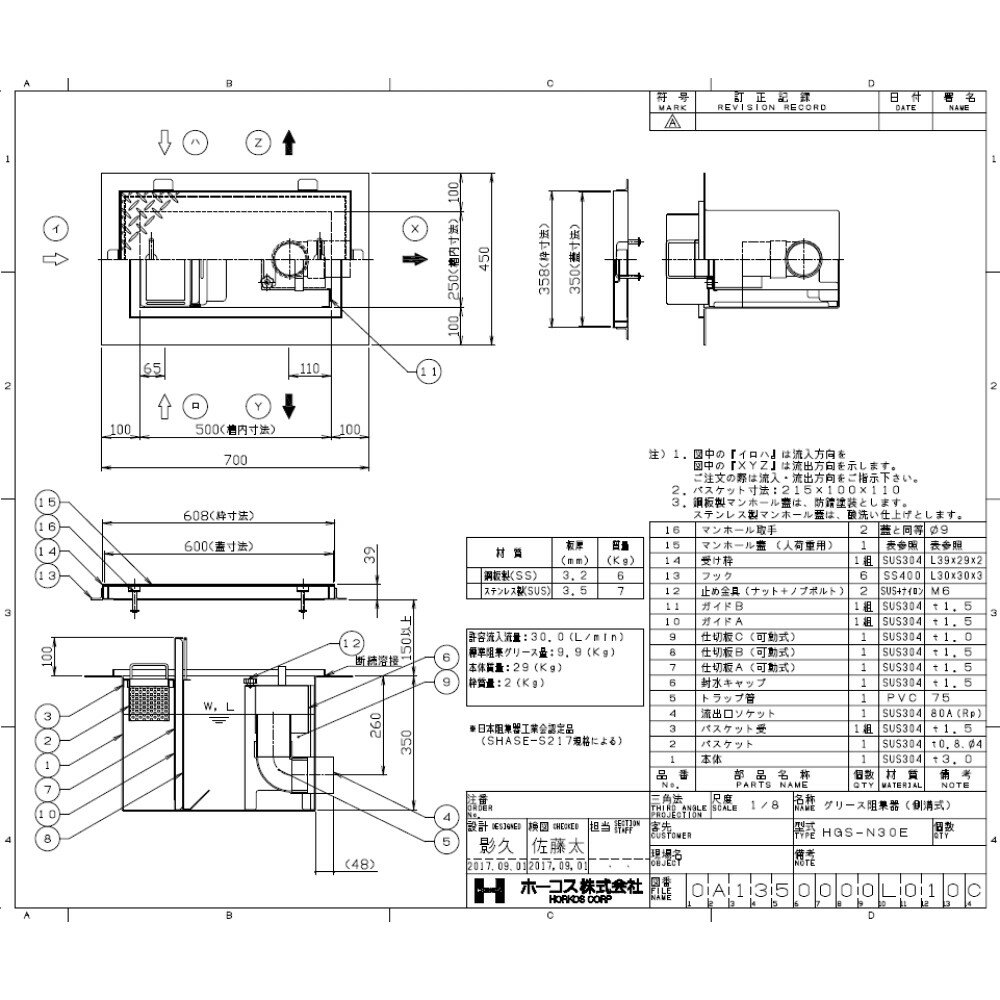
HORKOS ステンレス製グリース阻集器 床吊・地中埋設兼用 側溝流入式 3槽式 ■HGS-N30E+F  《セット内容》 ・本体 SUS304 ・バスケット SUS304 パンチングメタル ・マンホール蓋 鋼板製防錆塗装(人荷重) 床(スラブ)に開口を設け、吊るすように設置します。

厨房排水は直接側溝(ピット)から阻集器に流入します。

本体はステンレス製です。

丈夫でリサイクルも可能です。

◆施工手順 床吊 1.スラブコンクリートに阻集器本体が収まる開口が必要です。

2.流出方向(Y又はZ)の場合、流出口の飛び出し寸法を考慮した開口が必要となります。

3.スラブコンクリート開口部に阻集器本体が収まるかを確認してください。

4.阻集器本体を開口に収める前に、アングルサポートの取付けを行ってください。

  防水施工時に阻集器本体ツバ部との段差を無くすには、スラブ欠きし、あとでツバ周囲をモルタルで埋めます。

5.流入方向及び流出口方向を確認し、阻集器本体をスラブコンクリート開口部に収めます。

  レベル調整・芯だしを行ったあと、阻集器本体をスラブコンクリートに固定します。

6.固定は四隅にアンカーを打設し、阻集器本体ツバ部に溶接固定してください。

7.防水を施行し、防水保護モルタルを打設してください。

8.スラブコンクリート開口と阻集器本体のすき間は、モルタル等で埋め戻します。

9.阻集器本体設置のあと受け枠を設置するまでは、阻集器本体上部にコンパネ等でふたをし、   槽内にごみなどが入ったり、作業者が転落しないように安全処置を取ってください。

10.シンダーコンクリートを打設する際は木枠等で固定し、コンクリート圧により内側にたわまないようにしてください。

(バスケット、仕切板等が取り外せなくなることがあります。

) 11.受け枠を床仕上げレベルに合わせて設置します。

  この際、床仕上げを行う前にマンホール蓋を受け枠に設置しマンホール蓋が容易に外せることを確認してください。

(受け枠がねじれている場合、マンホール蓋が収まらなかったり、取り外せなくなることがあります。

) 12.流出管の接続は、シール剤を使用し確実に行ってください。

ホーコス グリーストラップ グリストラップ ゼロ荷重 荷重0

レビュー件数0
レビュー平均0
ショップ たね葉
税込価格 199,056円
hidetaka